君山|270㎡新中式风格家装设计

本案采用屏风、漆画和中式家具等塑造新中式风格家装空间,通过大理石、玻璃、水晶、实木金属线条、等材质元素丰富室内装饰风格。用干净利落的手法营造出一个舒适儒雅的国风文化空间。
客厅

一楼的客厅空间以大理石石材本身的花纹做装饰,地面采用拼贴抛光花砖增加室内的光泽度,墙面则是一素一雅,素面不做任何修饰,而单独在沙发背景墙上进行了装饰,线条漆画楼阁嵌入实木格栅,用画幅本身的意境来延展空间而用实木装饰与空间造型进行衔接,雅致大方。
在客餐厅与客厅空间是区分上,不仅利用叠级吊顶和水晶吊灯进行视觉隔断,还在墙面两侧加入半墙屏风设计,古代窗棂的元素加入金属和玻璃,让这个隔断有了古风雅韵的现代感。
餐厅

一楼的餐厅设计除了开放式的格局增加自由空间,还加入了现代风格中较为流行的岛台餐桌设计,线条精简,造型优美。
卧室

二楼的主卧室作为老人房,方便长辈使用,减少爬楼。整体用色以熟褐和白色为主,散发着沉稳平和的气质。
老人房除了配备独立的衣帽间和卫生间,在卧室内还加入了电视、沙发、茶几等家具,形成一个一应俱全的小独居空间,让长辈的生活更为便捷丰富。

三楼主卧空间的中国风韵味更加明显,多出实木的运用、园林小景的装饰手法、日式格栅的折叠门等,营造出禅意静雅的中式风格,部分的现代家具的加入则是新中式设计的经典融合。
主卧的阳台用日式格栅门做了一个茶室书房空间,实木长桌、落地明窗、蒲团盘坐,单独来看这个阳台空间更有一种修身养性的禅意美学。
影音室

整栋别墅中除了每层都有电视外,在二楼和三楼都做了独立影音室,二楼主要以储物阅读为主,三楼的影音室空间较大一些,在主卧楼层平时更为常用。三楼的影音室做了书架展示柜还加入了水吧储物柜,方便在观影时增加一些小食和饮品,让生活更为便捷、实用、舒适。
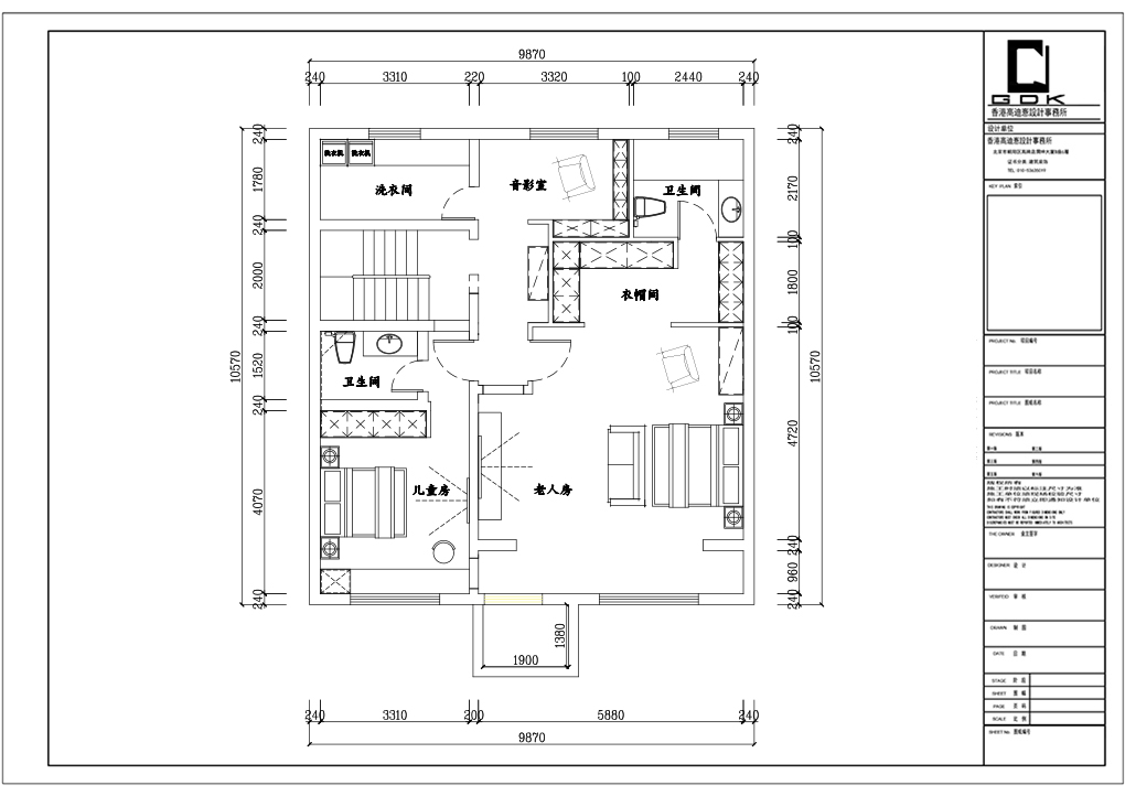
平面方案

一楼拆改说明:
一层主要是会客区,我们为了保证内部空间的明亮通透,并没有做太多的改动,但在开放式岛台餐桌的位置与客厅空间之间做了一道屏风处理,既是空间装饰减少空荡的感觉也是装饰,增加设计效果。
另外在客厅阳台部分,我们将原本的玄关部分进行了调整,将玄关的一部分纳入到客厅空间,做一处开放阳台,增加内里采光和使用空间,剩余部分加入玄关柜方实用性更强。


二层拆改说明:
二楼原本格局较为松散,动线不明,在实际使用上有着诸多不便之处,因此我们将整个二层的空间进行打碎重组,优化生活动线,重做功能分区。
1. 原本的卫浴储物功能区细分并不明显,我们重新规划后,将两个空间改为影音室、卫浴空间、衣帽间三个细分空间,并截取出玄关位,让整个二楼各个空间有明显并增加了一定隐私保护。
2. 在二楼入口处加入了一个过道设计,改变了儿童房和老人房的不如方向,让动线更为顺畅。
3. 儿童房的空间足够用,所以我们考虑以后方便孩子的使用,在儿童房内加了一个独立卫生间。
4. 原本二楼的阳台是在儿童房内部使用率不充足,我们将其打开改入到老人房内,一方面增加老人房内部使用空间,另一方面也可以增加室内的采光和通风。


三层拆改说明:
三层空间是主卧休息区,原本为一个大开间,我们通过新建墙题将大开间进行重新布局,我们在步梯上楼处加建玄关位,避免上楼即见卧室内部,另外也是将影音休闲区和休息区做空间区分。休息区的主卧内部布局,我们利用新建墙体作出二分离主卫空间和独立衣帽间,让主卧空间格局更清晰明朗,使用起来更便捷。
