全国免费咨询电话
400-8388-578

原创设计,全案落地服务

案例

CASE OF GAODIK

首页 > 案例 > 别墅设计 > 实景| 多材质颜色烧脑混搭

实景| 多材质颜色烧脑混搭

_DSC8871.jpg


我惊奇于我的复杂,


和每一只麻雀,每一棵树的复杂。
相比之下,
一切的机械都是笨拙的,
缺乏想象力的

——秦立彦


项目面积  / 260㎡


Area / 260
项目地址  / 北京西城
Location / xicheng · Beijing
设计机构  / 高迪愙设计事务所
Design Agency/ Gaodik Design Firm

衍生 · 想象力 

Derivative  · Imagination   


微信图片_20211221101447.jpg


在所有的秩序里,我偏袒想象力的复杂和衍生意义~


生活需要一些想象力,如果你不去想象,就无法面对这个世界的未知,而那些未知的事物,是让生活保有新鲜活力的源头。无论身心有多么疲惫,只要我们一直吸纳新鲜事物,保持浪漫纯真的本心,生活就可以永远年轻下去......



从色彩的衍生到风格的折衷表现


From the derivation of color 
to the eclectic expression of style

微信图片_20211221101835.jpg

【色彩衍生】本案是这样一个的融合了精致与无限可能的家,设计之初业主就表达了对不同色彩的包容,因此设计师从色彩出发,主体用色取自于「青」衍生出的绿、青、蓝、靛、黑来铺就大部分空间,并辅以橙色系相互碰撞

全屋采用了11种不同颜色,大胆而烧脑的组合,让不同色彩在不同空间,发挥着其独特的魅力,又相互间通过细节元素、和材质上的共鸣来保持精致复古的共性。特性与共性之间的平衡,材质与细节上的呼应,呈现出独有的气质。

【折衷表现】想象力表现为一种创造和突破,复古则意味着一种延续时光的美,我们在每个时代的艺术经典中寻找美的不同形式与丰富色彩的联系,进行一种糅合创造,结合当下的生活,表达一种独一无二的生活态度。


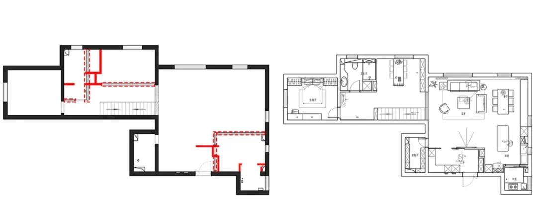
户型优化
House renovation

微信图片_20211221102704.jpg
△ 一层平面布局


. 原户型没有独立的玄关,一开门就直面客厅,私密性比较差。设计师通过拆建,划分出门厅区域,并选用玻璃推拉门设计兼顾空间的遮挡与采光,大大增加入户的收纳。

. 原厨房被开放出来,增加西厨与客餐厅区域形成一个开阔的整体空间,更通透舒适。同时保留了一个小的中厨功能区。

. 拆除小卧室墙体,改为开放式功能书房,并横向扩大客卫面积,缩短客卫进深,让整体空间更松弛舒服。

微信图片_20211221102949.jpg
△二层平面布局

. 主卧新增衣帽间,打造一个功能完备的私密空间。

. 原次卫面积较小,设计将墙体往次卧二推移部分,扩大面积,以满足两个次卧使用。


「 玄关 · Porch

_DSC8953.jpg


门厅区域是连接室内外的缓冲地带

丰富纯粹的色彩、繁复雅致的花纹壁纸

突出墙面的视觉载体作用

而整体的造型则以简约为主,通过黄铜色点缀

复古元素和当下的简约美学相结合

呈现经典又时尚的质感


_DSC8965-Pano.jpg

玻璃推拉门的运用,既避免了入户的一览无余又确保了采光和通透感


「 客厅 · living room

_DSC8718.jpg

_DSC8691.jpg

新增电视背景墙后的客餐厅功能分明,动线合理

厨房被开放出来,改为西厨,整个客餐厅区域变得开阔通透

主沙发靠窗的设计消减窗景与室内的边界感

局部主灯设计与各种点光源、落地灯

共同打造全景灯光氛围,丰富空间层次

_DSC8882.jpg

_DSC8801.jpg

顶面石膏雕花与流畅的线条

折衷了法式的优雅与现代的明快

旧物感中古家具又增加了空间的趣味性和怀旧氛围

新旧的结合,是对美的沉淀和再续

_DSC8884.jpg

「 餐厅 · Dinning room

_DSC8758.jpg

干净明快的空间底色

将整个客餐厅的重点让渡给了高饱和度的经典蓝

胡桃木色太阳椅给空间置入了一些温度

色彩比例的合理把控,营造了干净舒适又有质感的空间

_DSC8876.jpg

_DSC8871.jpg

裹挟着自然与质朴工艺气息的吧台椅与高纯度蓝色是经典搭配,也串联起了各个空间中的复古元素。

_DSC8950-Pano.jpg

保留封闭中厨

「 功能区 · Functional area

_DSC8920.jpg

业主对色彩的包容促就了空间更多的想象可能

色彩浓郁造型繁复的书架瞬间拉进了现实与童话世界的距离

这里是书房也是孩子快乐童年里的异想世界

_DSC8903.jpg


微信图片_20211221105851.jpg


楼梯墙面装饰通铺了宫廷风格复古壁纸

视觉上缩短了墙面的高度

同时起到丰富空间的作用减轻留白带来的乏味感

「 卧室 · bedroom

_DSC8346-Pano.jpg

_DSC8273-Pano.jpg

卧室以低饱和度绿色来做整体铺垫,撞色柔和而不尖锐

主体墙面拼贴复古印花壁纸,来诠怀旧与精致

光泽感和垂坠感制胜的丝绒窗帘搭配上高饱和的色调

散发出浪漫的复古风情和华丽的贵气感

_DSC8564.jpg


_DSC8552.jpg

微信图片_20211221110418.jpg


_DSC8558-Pano.jpg

主卧衣帽间则是另外一种色彩的混搭

低饱和糖果色,没有过度的明暗反差

浪漫古典,仿佛进入了韦德·安德森的电影世界


「 主卫 · bathroom

_DSC8568-Pano.jpg

小面积空间的重色组合,不会有太强的压迫感

其华丽而浓郁的氛围在一众色彩中像是一个惊喜

黄铜材质的金属配件高级感拉满

这个家每个地方都充满想象力和新鲜感


「 儿童房 · Children's room


_DSC8601.jpg


_DSC8624.jpg

胡桃色古典家具与黄铜元素,串联起了儿童房与其他空间的内在联系

_DSC8583.jpg

「 次卧 · Second bedroom

_DSC8648.jpg

带点波普风格的波点元素打破了一味的撞色模式

弱化色彩后的玻璃花窗增加了一些Art Deco艺术风情

想象力和可能性在这个家里随处可见

次卧目前作为一个休闲活动区使用

未来可以根据需求更换使用场景

_DSC8663.jpg


_DSC8679.jpg


_DSC8632-Pano.jpg

次卫风格明显与其他空间相径庭

黑白条纹元素的大面积使用夸张而大胆

_DSC8926.jpg

保姆间

35.jpg



实景| 多材质颜色烧脑混搭
案例信息
项目地点:立恒名苑
建筑面积:257㎡
设计单位:高迪愙设计事务所
设计师 :张贤发

案例介绍

【色彩衍生】本案是这样一个的融合了精致与无限可能的家,设计之初业主就表达了对不同色彩的包容,因此设计师从色彩出发,主体用色取自于「青」衍生出的绿、青、蓝、靛、黑来铺就大部分空间,并辅以橙色系相互碰撞。 全屋采用了11种不同颜色,大胆而烧脑的组合,让不同色彩在不同空间,发挥着其独特的魅力,又相互间通过细节元素、和材质上的共鸣来保持精致复古的共性。特性与共性之间的平衡,材质与细节上的呼应,呈现出独有的气质。 【折衷表现】想象力表现为一种创造和突破,复古则意味着一种延续时光的美,我们在每个时代的艺术经典中寻找美的不同形式与丰富色彩的联系,进行一种糅合创造,结合当下的生活,表达一种独一无二的生活态度。

设计师:张贤发

职 位: 高迪愙创始人
擅长风格:新中式、现代、混搭
设计理念:设计源于生活,抽丝于艺术,扎根于生活
相关案例推荐/ Related cases
在线咨询 电话沟通 预约设计

在线预约